For Sale
Active
Ref: PN#156287
Apartment/Penthouse For Sale in Kramersdorf, Swakopmund
Kramersdorf, Swakopmund
N$1,480,000
Listed 2 weeks ago
Property Overview
0
Bedrooms
0
Bathrooms
0
Garages
0
Undercover parking
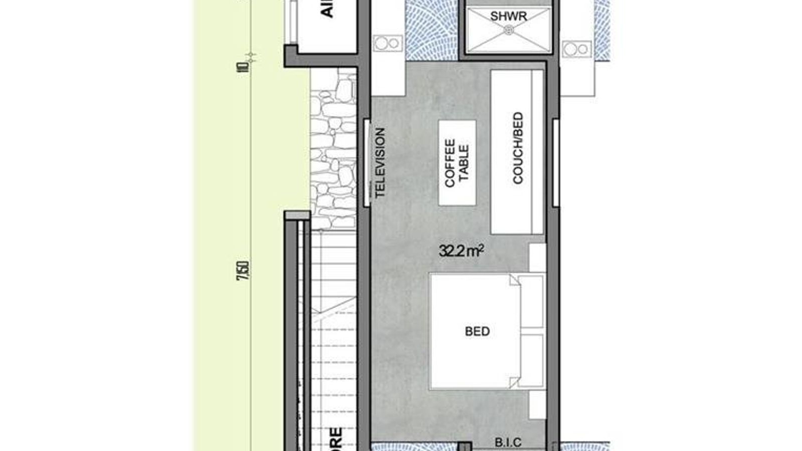
35
Floor area (m²)
0
Erf size (m²)
For Sale
Listing type
Apartment/Penthouse
Property type
Henric Estates CC
Seller
Open mandate
Mandate
Property Description
1. Exiting Investment opportunity
a. Self catering Hotel within a town lodge style development
b. 82 Units
i. Totally furnished
ii. Focus on family friendly resort
2. Benefits
a. Low investment vs. high return
b. 35% occupancy = 10% return
c. 65% occupancy = 24% return
d. 75% occupancy = 26% return
e. Total pool income is shared to the owners
3. Swakopmund market
a. Projections align with conservative (35%), average (65%) and maximum (75%) occupancy scenarios,
b. Reflecting local hospitality trends
4. Options
a. Unit only – N$1,480,000 – Earns income from accomodation only
i. Lower entry cost, attracting – 50% of investors
ii. Return on investment – 10% to 26%
iii. driven by reliable accommodation income
b. Full investment – N$1,680,000 – Income from accommodation and other amenities
i. Higher return on investment – 14% to 32%,
ii. Leveraging diversified income from amenities
1. Bar/Restaurant/Conference facilities
iii. Ideal for investors seeking broader revenue streams
c. Passive income
i. Professional management by Perfect Stay ensures seamless operation
5. Process
a. Developer plans to sell 50% by January 2026
b. Buyer signs “Offer to purchase”
c. Buyer pays non-refundable N$30,000 deposit within 7 days
d. Buyer provides guarantees for the balance within 30 days
e. Plan to complete 2026
6. Levies appr.N$4,500
a. All replacements/repairs in the units “financed from the levies pool”
VAT excluded (if applicable)
TRANSFER Costs included - only should buyer be a natural person.
a. Self catering Hotel within a town lodge style development
b. 82 Units
i. Totally furnished
ii. Focus on family friendly resort
2. Benefits
a. Low investment vs. high return
b. 35% occupancy = 10% return
c. 65% occupancy = 24% return
d. 75% occupancy = 26% return
e. Total pool income is shared to the owners
3. Swakopmund market
a. Projections align with conservative (35%), average (65%) and maximum (75%) occupancy scenarios,
b. Reflecting local hospitality trends
4. Options
a. Unit only – N$1,480,000 – Earns income from accomodation only
i. Lower entry cost, attracting – 50% of investors
ii. Return on investment – 10% to 26%
iii. driven by reliable accommodation income
b. Full investment – N$1,680,000 – Income from accommodation and other amenities
i. Higher return on investment – 14% to 32%,
ii. Leveraging diversified income from amenities
1. Bar/Restaurant/Conference facilities
iii. Ideal for investors seeking broader revenue streams
c. Passive income
i. Professional management by Perfect Stay ensures seamless operation
5. Process
a. Developer plans to sell 50% by January 2026
b. Buyer signs “Offer to purchase”
c. Buyer pays non-refundable N$30,000 deposit within 7 days
d. Buyer provides guarantees for the balance within 30 days
e. Plan to complete 2026
6. Levies appr.N$4,500
a. All replacements/repairs in the units “financed from the levies pool”
VAT excluded (if applicable)
TRANSFER Costs included - only should buyer be a natural person.