For Sale
Active
Ref: PN#157677
3 Bedroom House For Sale in Swakopmund Ext 23, Swakopmund
Swakopmund Ext 23, Swakopmund
N$2,995,000
Listed today
Property Overview
3
Bedrooms
2
Bathrooms
2
Garages
0
Undercover parking
210
Floor area (m²)
564
Erf size (m²)
For Sale
Listing type
House
Property type
Vollgraaff Real Estate
Seller
Open mandate
Mandate
Property Description
EXCLUSIVE MANDATE
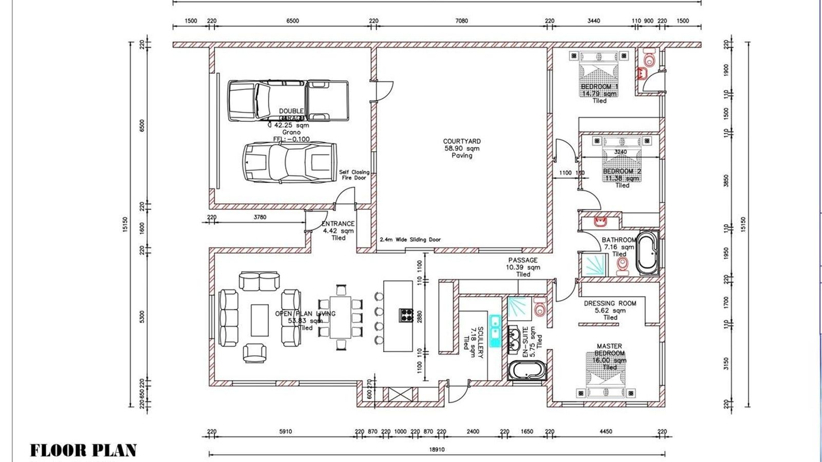
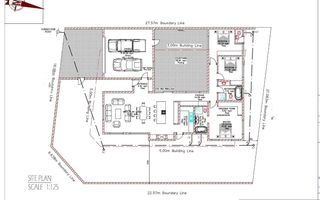
Situated on a corner erf , this brand-new home currently under construction offers a well-designed layout combined with quality finishes by a contractor known for excellent workmanship.
The home has been thoughtfully designed to create comfortable open-plan living. The spacious living and dining area features an indoor braai and flows into a modern kitchen with a central island and separate scullery, providing both practicality and style for everyday living and entertaining.
The property offers three bedrooms, including a main bedroom with dressing room and en-suite bathroom. Two additional bedrooms share a family bathroom, while a dedicated study area provides a convenient workspace or study corner.
A double garage, private courtyard area and an additional outside toilet add further practicality to the property, while the corner position allows for a comfortable sense of space and privacy.
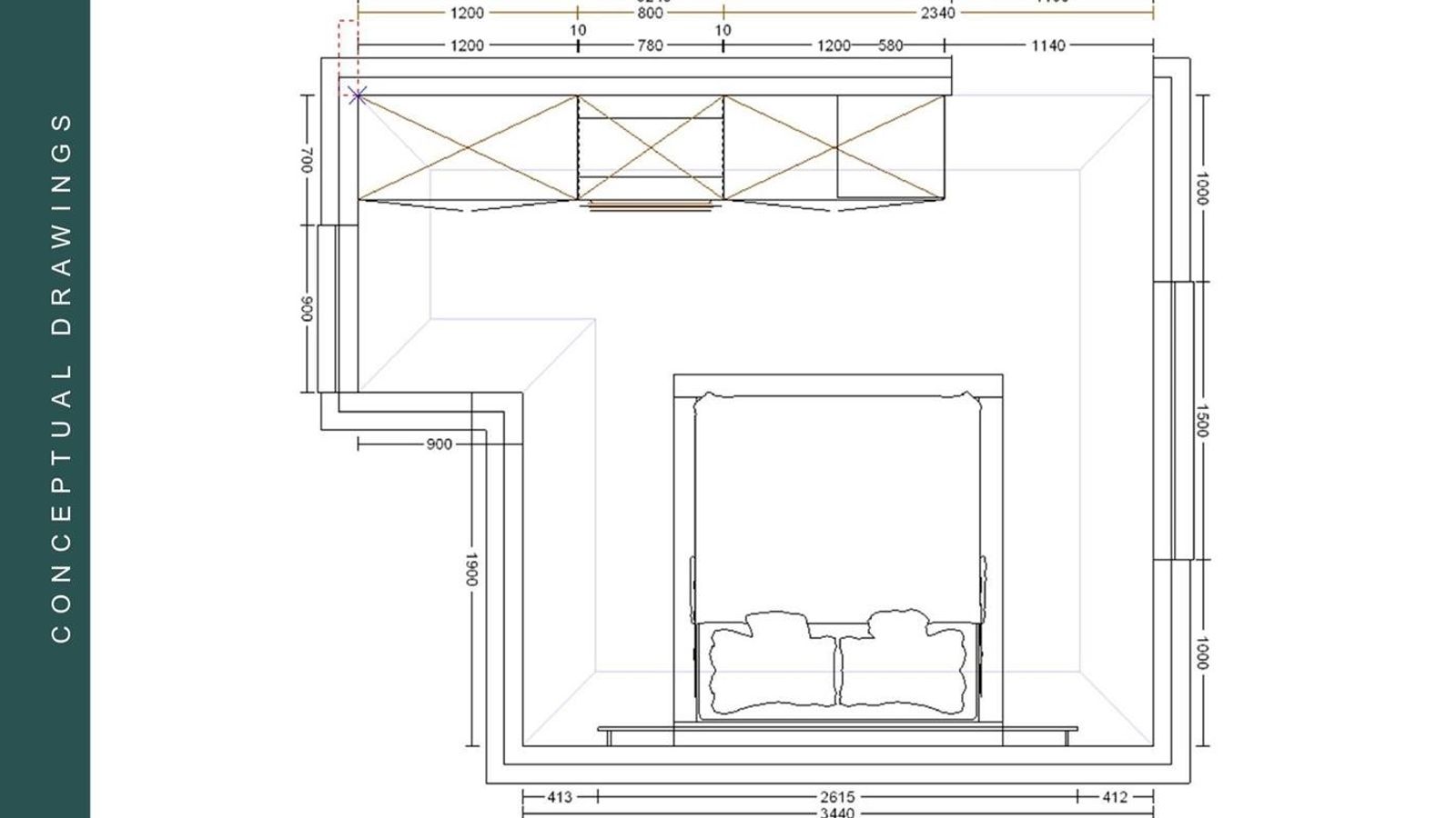
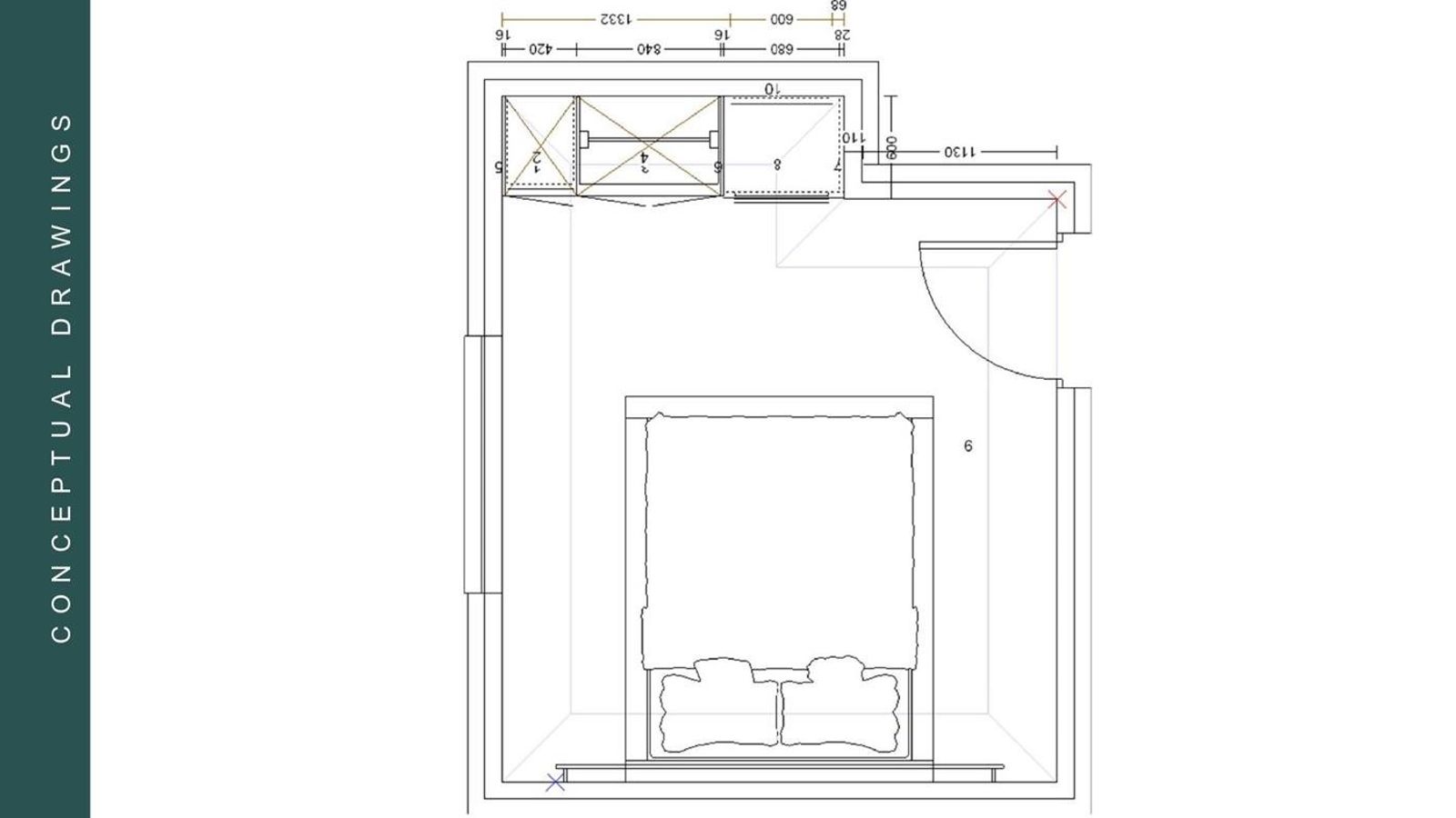
Expected completion of the property is June 2026. Floor plan attached to see the size and layout.
This new home presents an excellent opportunity for buyers looking for a modern coastal residence, holiday home, or investment property in Swakopmund.
Situated on a corner erf , this brand-new home currently under construction offers a well-designed layout combined with quality finishes by a contractor known for excellent workmanship.
The home has been thoughtfully designed to create comfortable open-plan living. The spacious living and dining area features an indoor braai and flows into a modern kitchen with a central island and separate scullery, providing both practicality and style for everyday living and entertaining.
The property offers three bedrooms, including a main bedroom with dressing room and en-suite bathroom. Two additional bedrooms share a family bathroom, while a dedicated study area provides a convenient workspace or study corner.
A double garage, private courtyard area and an additional outside toilet add further practicality to the property, while the corner position allows for a comfortable sense of space and privacy.
Expected completion of the property is June 2026. Floor plan attached to see the size and layout.
This new home presents an excellent opportunity for buyers looking for a modern coastal residence, holiday home, or investment property in Swakopmund.